-
-
-
Tổng tiền thanh toán:
-
Bàn cầu một khối V68
Mã sản phẩm: V68
Được thiết kế với nhà thiết kế TBVS hàng đầu thế giới người Ý, Nilo Gioacchini. Bàn cầu có thiết kế hòa quyện giữa những hình khối đơn giản mang đến cảm giác hài hòa vô cùng tinh tế. Cùng với ý nghĩa trong cái tên “Hải Vân” mang đậm chất dân tộc, bộ sưu tập một lần nữa khẳng định dấu ấn công nghệ Việt trong xu hướng hội nhập mới.

Bàn cầu một khối Hải Vân - Thiết kế nguyên khối, đơn giản, tinh tế
ƯU ĐIỂM CỦA SẢN PHẨM
1.Thiết kế vành Rimless
Bàn cầu một khối V68 thiết kế không vành trơn láng, không chứa nước, không tạo khe, giúp ngăn ngừa vi khuẩn sinh sôi, hạn chế mùi hôi và giúp người dùng dễ dàng vệ sinh lau chùi.
Thiết kế của vành Rimless còn dễ dàng vệ sinh, hạn chế tích tụ chất bẩn. Nước từ két xả sạch từ vành xuống xung quanh lòng bồn cầu sẽ cuốn sạch các vết bám bẩn trong lòng bồn cầu . Bên cạnh đó, vành Rimless mang thiết kế hiện đại, xả xoáy êm nhẹ, giúp nâng cao chất lượng cuộc sống.
![]()
Thiết kế không vành Rimless
2. Men Ag+ Ceramic kháng khuẩn, tự làm sạch hiệu quả
Toàn bộ phần sứ của bàn cầu một khối V68 được tráng men Ag+ Ceramic - công nghệ men độc quyền của Viglacera. Đây là lớp men chứa tác nhân kháng khuẩn ion bạc Ag+ Ceramic, có công dụng kháng đến 89% vi khuẩn, được kiểm nghiệm bởi Viện Pasteur thành phố Hồ Chí Minh.
Lớp men được thủy tinh hóa, gắn chặt lên bề mặt sản phẩm, có khả năng chống thấm, chống bám dính, tự làm sạch hiệu quả. Giữ cho sản phẩm luôn sáng bóng, bền lâu trong suốt thời gian sử dụng.
![]()
Công nghệ men Ag+ Ceramic kháng khuẩn độc quyền của Viglacera
3. Thiết kế nguyên khối, kích thước nhỏ gọn
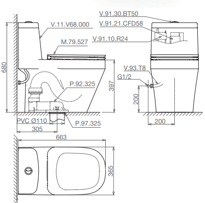
Bàn cầu một khối Hải Vân V68 có kích thước nhỏ gọn chỉ D663 * R365 * C680, phù hợp cho mọi diện tích và yêu cầu sử dụng.
Đặc biệt, thiết kế liền khối, đường nét thiết kế tối giản giúp hạn chế tối đa việc bám đọng vi khuẩn, bụi bẩn hay các vết ố vàng ở các thành, vách,... Giúp người dùng dễ dàng vệ sinh, giảm thiểu thời gian và công sức lau chùi bồn cầu.
4. Công nghệ xả Max Vortex
Là công nghệ xả xoáy Max Vortex tiên tiến. Với 100% lượng nước thông qua hệ thống xả 2 cửa nối tiếp nhau tạo lốc xoáy trên vành, kết hợp cùng siphong có đường kính lớn, lực hút mạnh mẽ, cuốn trôi mọi chất bẩn quanh lòng bàn cầu
Công nghệ Max Vortex xả sạch triệt để trong mọi điều kiện nguồn nước
5. Trap nhựa ngăn rò mùi, tránh tắc nghẽn
Tại hệ thống xả của bàn cầu Hải Vân có lắp đặt trap xả thải nhựa, thiết kế uốn cong như một cái bẫy. Trap nhựa này sẽ lưu trữ lượng nước nhỏ trong đường ống xả, tạo ra một lực vô hình giúp ngăn mùi hiệu quả, hạn chế mùi hôi thối khó chịu thoát ra từ các ống thoát nước.
Bên cạnh đó, trap nhựa cố định giúp thuận tiện trong việc thi công, dễ dàng lắp đặt.
6. Nắp bồn cầu chống xước
Nắp bồn cầu sử dụng vật liệu UF, chống xước, chịu lực, chống đổi màu theo thời gian
- Xả nhấn tiết kiệm nước với 2 chế độ tiểu | đại: 3L | 6L
- Cột cấp Piston tránh tình trạng tắc nghẽn
- Kích thước: tâm lỗ chờ ống thải cách bề mặt tường hoàn thiện ít nhất 305 mm.
- Đạt tiêu chuẩn TCVN 12649-2020, TCVN 12650-2020
- Đạt tiêu chuẩn ASME A112.19.2/CSA B45.1
Xem bản vẽ kỹ thuật bên dưới
![]()
